Fステージ上荒田
-
価格/
3,390万円
-
物件種別/
マンション
-
所在地
鹿児島市上荒田町51-1
-
アクセス
鹿児島市電唐湊線 神田(交通局前)まで 徒歩7分
おすすめ
ポイント!
ポイント!
フルリフォーム済みでバルコニーからの眺望良好なお部屋です!
ローンシミュレーションのご案内
購入をご検討中の方へ。
毎月のお支払い額などを簡単に試算できる、住宅ローンのシミュレーションをご利用いただけます。
▶︎ 鹿児島銀行 住宅ローンシミュレーションはこちら(別サイト)
※その他の金融機関をご希望の場合は、各行の公式サイトにてご確認ください。
| 所在地 | 鹿児島市上荒田町51-1 | ||
|---|---|---|---|
| 交通 | 鹿児島市電唐湊線 神田(交通局前)まで 徒歩7分 | ||
| 学校区 | |||
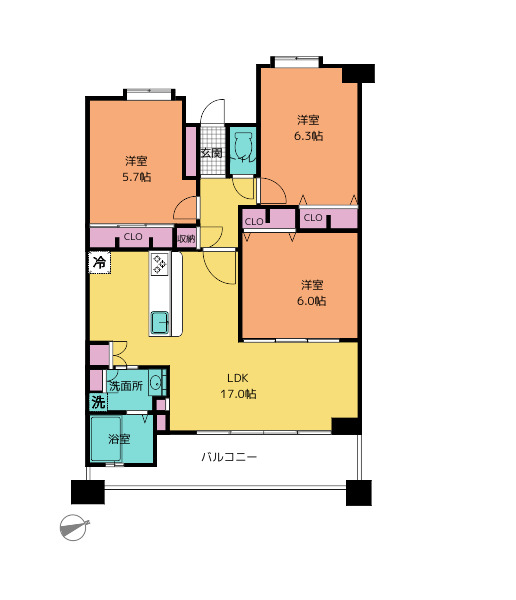
| 間取り | 3LDK | 価格 | 3,390万円 |
| 所在階/階数 | 12階建/11階部分 | 構造 | SRC |
| 築年月 | 2003年09月 | 土地面積 | |
| 専有面積 | 壁芯 75.47㎡ | バルコニー | 有 13.09㎡ |
| テラス面積 | 専用庭面積 | ||
| 接道 | 向き | 主要採光 南東向き | |
| 管理費 | 5,820円/月 | 修繕積立金 | 10,570円/月 |
| 用途地域 | 2種中高 | 都市計画 | |
| 総戸数 | 85戸 | 販売戸数 | |
| 駐車場 | 有 5,000~10,000円/月 | ||
| 駐車場備考 | |||
| リフォーム | ■水回り:2025年04月 キッチン 浴室 トイレ 洗面所 ■内装:2025年04月 全室クロス張替え 床(フローリング等) 壁・天井(クロス・塗装等) 建具(室内ドア等) | ||
| 現況 | 空家 | 引き渡し可能時期 | 即時 |
| 設備 | オートバス 浴室に窓あり 温水洗浄便座 3口以上コンロ カウンターキッチン システムキッチン 食器洗浄乾燥機 収納スペース 全居室収納 室内洗濯機置場 アルコーブ オートロック エレベーター | ||
| 管理方式 | |||
| 管理人 | 管理会社 | ㈱合人社計画研究所 | |
| 管理形態 | 全部委託 管理員の勤務形態:日勤 | 管理組合 | |
| 現況利回り | 満室利回り | ||
| 開発許可番号 | |||
| 借地料 | 借地契約期間 | ||
| 借地内容 | |||
| 取引態様 | 媒介 | 仲介手数料 | 価格の3.0%+6万円 |
| 契約条件 | |||
| 取引条件の有効期限 | |||
| 特記事項 | |||
| 備考 | |||
- 図面と現況が異なる場合は、現況を優先とします。
- 掲載物件は成約済み・売却中止となる場合があります。
- 成約の際は仲介手数料とこれにかかる消費税が必要です。(当社が売主の物件除く)
- 未完成物件の場合、外観写真や内観写真は同仕様タイプであり、実際とは異なります。
